Attraktive und großzügige Gewerbe- /Praxis- / Bürofläche

in fußläufiger Lage nahe Stadtkern

Die wichtigsten Daten in der

Kurzübersicht

Adresse

96358 Teuschnitz

Wohnfläche

ca. 180,00m²

Grundstücksfläche

ca. -m²

Baujahr

1972

Zimmeranzahl

12 Zimmer, 2 WC's

Stellplatz

-

Gesamtmietpreis

1.440,00 € (warm)

Provision

1,785 Kaltmieten inkl. 19% MwSt.

Objektbeschreibung


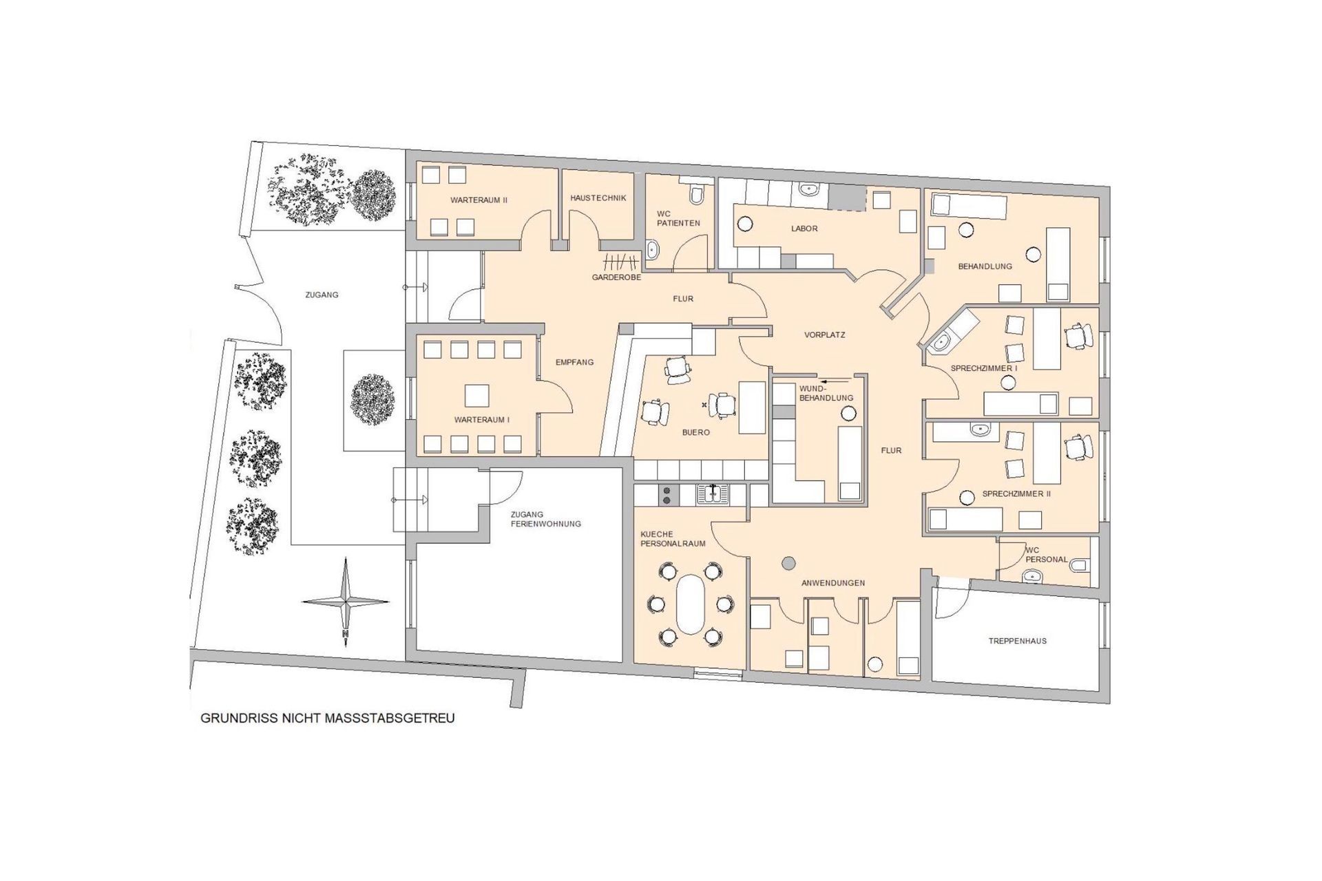
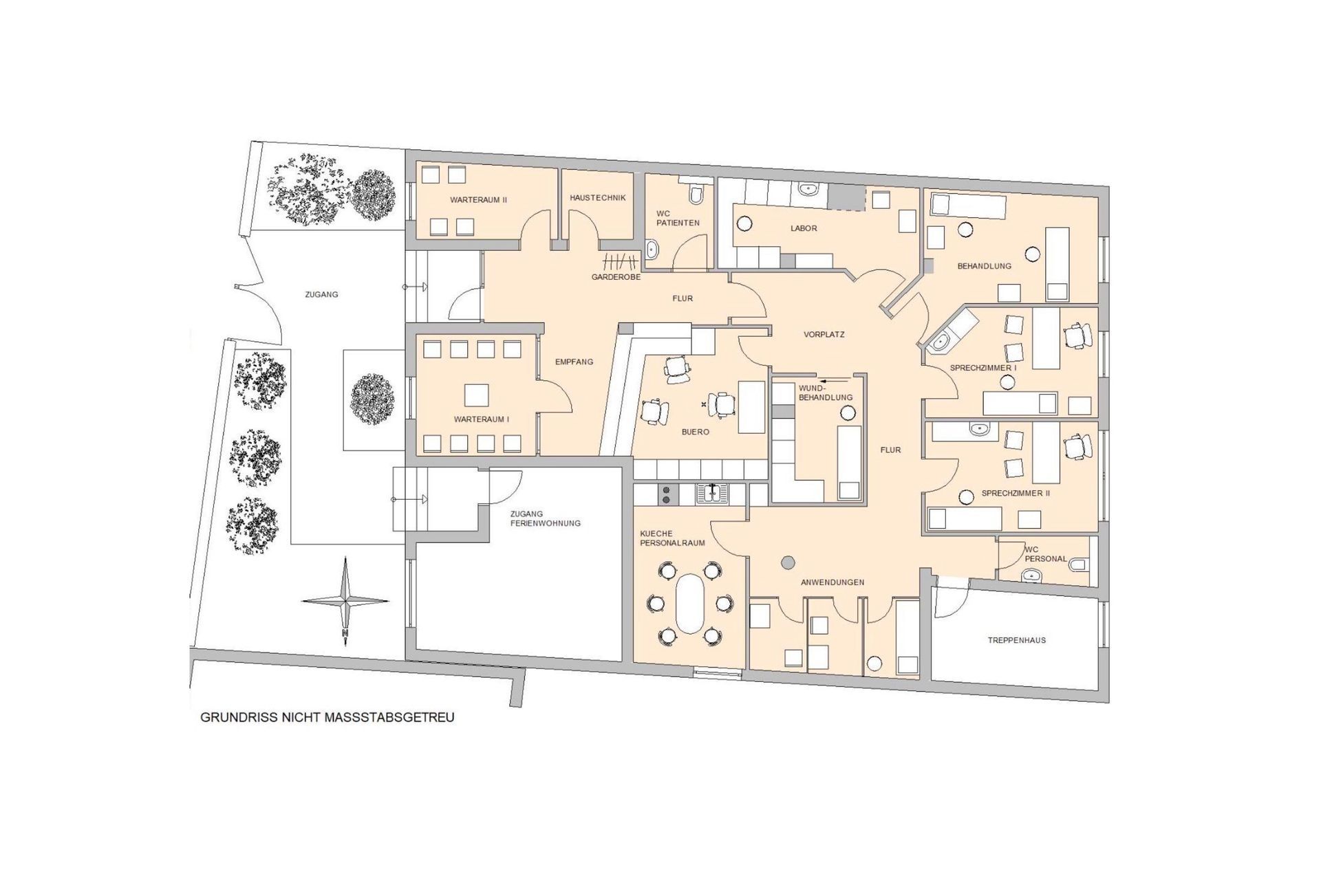
Willkommen in Ihren neuen Gewerberäumen im charmanten Teuschnitz! Diese gepflegte Immobilie, gebaut im Jahr 1972, bietet Ihnen alles, was Sie für einen erfolgreichen Start benötigen. Auf geräumigen 12 Zimmern können Sie Ihre Visionen verwirklichen und Ihren Patienten bzw. Kunden eine angenehme Atmosphäre bieten.



Das Beste daran: Die Einrichtung kann ablösefrei übernommen werden, sodass Sie sofort loslegen können. Der gepflegte Zustand der Räumlichkeiten ermöglicht einen reibungslosen Start ohne notwendigen Renovierungsaufwand. Zudem wurden in 2004 umfangreiche Praxisaus- bzw. Umbauten vorgenommen und im Jahr 2024 eine neue Heizung installiert, sodass Sie von modernen Standards profitieren.


Für Ärzte besteht zudem die vorübergehende Möglichkeit, die darüber befindliche möblierte Ferienwohnung mit 4 Zimmern und 80 m2 Wohnfläche sowie einer 50 m2 großen Dachterrasse anzumieten. Diese zusätzliche Fläche kann als privater Rückzugsort genutzt werden und bietet Ihnen weiteren Komfort bis Sie sich in Ihrem neuen Wohnort eingelebt haben.



Das angebotene Gewerbeobjekt bietet eine äußerst flexible Nutzungsmöglichkeit und ist ideal für verschiedene Fachbereiche und Berufe. Ob Sie ein renommiertes Notariat, eine dynamische Versicherungsmakleragentur oder eine gut frequentierte Rechtsanwalts- oder Steuerberatungskanzlei eröffnen möchten – hier finden Sie die geeigneten Räumlichkeiten. Darüber hinaus ist das Objekt perfekt zugeschnitten für ärztliche und medizinische Praxen, Physiotherapieeinrichtungen sowie zahlreiche weitere gewerbliche Tätigkeiten.



Nutzen Sie die hervorragende Infrastruktur und die optimale Lage dieses Objektes, um Ihren beruflichen Standort bestens aufzustellen und Ihre Kundschaft mit ansprechenden und funktionalen Flächen zu empfangen. Die Vielseitigkeit dieses Gewerbeobjektes ermöglicht es Ihnen, Ihre individuellen betrieblichen Anforderungen optimal umzusetzen und gleichzeitig in einem Umfeld von Qualität und Professionalität zu agieren.

Lagebeschreibung


Das Gewerbeobjekt befindet sich in der Mittleren Straße 15, 96358 Teuschnitz, und bietet eine ausgezeichnete Lage für eine Vielzahl gewerblicher Nutzungsmöglichkeiten. Die zentrale Lage des Objekts, nur 250 Meter von der Stadtmitte und dem Rathaus entfernt, gewährleistet eine hervorragende Erreichbarkeit.



In Bezug auf die Familienfreundlichkeit besticht das Objekt durch die Nähe zu mehreren Bildungseinrichtungen. Der Kinderhort und die nahegelegene Grundschule sind lediglich 600 Meter entfernt. Weiterführende Schulen wie Realschulen und Gymnasien sind in einem Radius von 20 Kilometern gut erreichbar.


Zwei Hallenbäder und eine Badesee befinden sich in einem Umkreis von 10km Entfernung. Der neu angelegte Wasserspielplatz, der sich nur 500 Meter entfernt befindet, bietet zudem eine attraktive Möglichkeit zur Erholung.


Für Weiterbildung und kulinarische Genüsse laden die Arnika-Akademie und das Arnika-Café, jeweils nur 500 Meter entfernt, ein. Die Nahversorgung ist optimal durch die Nähe zu zwei Bäckereien (150 Meter), drei Metzgereien (200 Meter) und einem Bankautomaten (150 Meter) gesichert. Weitere Einkaufsmöglichkeiten liegen in einem Umkreis von 6 Kilometern. Für den täglichen Bedarf ist die nächstgelegene Tankstelle nur 4,1 Kilometer entfernt.


Die medizinische Versorgung in der Umgebung erfüllt ebenfalls hohe Anforderungen. Eine Apotheke ist lediglich 90 Meter entfernt, und eine Praxis für Allgemeinmedizin befindet sich in 250 Metern Entfernung. Das nächstgelegene Krankenhaus ist in 20 Minuten erreicht.


Mehrere Friseursalons innerhalb eines 250-Meter-Radius sowie diverse gastronomische Betriebe ergänzen das Angebot.


Diese hervorragenden infrastrukturellen Gegebenheiten machen das Objekt zu einer idealen Wahl für verschiedenste gewerbliche Nutzungsmöglichkeiten und bieten gleichzeitig eine hohe Lebensqualität für die Mitarbeiter.

Energie


Energieausweis: Energiebedarfsausweis
Wesentliche Energieträger: GAS
Endenergiebedarf: 297.8 kWh(m²*a)
Endenergieverbrauch Strom: 16 kWh(m²*a)
Endenergieverbrauch Wärme: 272 kWh(m²*a)
Gültig bis: 2034-08-07
Baujahr (gemäß Energieausweis): 1970

Weitere Informationen


Dieses Expose ist eine Vorabinformation, als Rechtsgrundlage gilt allein der abgeschlossene Mietvertrag. Wir weisen auf unsere allgemeinen Geschäftsbedingungen hin.


Alle Angaben beruhen auf uns vorliegenden Informationen des Auftraggebers nach bestem Wissen und Gewissen und sind freibleibend und unverbindlich. Wir übernehmen für die Angaben Dritter keinerlei Gewährleistung oder Haftung.


Selbstverständlich halten wir für Sie alle erforderlichen Objektunterlagen und Informationen bereit bzw. holen diese ggf. gerne ein und stellen Ihnen das Objekt im Zuge einer Besichtigung vor Ort vor.


Als zusätzlichen und für Sie selbstverständlich kostenfreien und unverbindlichen Service bereiten wir Ihnen gerne ein auf Sie maßgeschneidertes Finanzierungs- & ggf. Versicherungsangebot.